- Badrumsinredning
- Utemiljö & Trädgård
- Dörrar & portar
- Sport & fritid
- Fönster
- Verktyg & redskap
- Växthus
- Träningsutrustning
- Stugor & Friggebodar
- Hem & inredning
- Lagerrensning
- Hus & bygg
- Bil & garage
- Påskerbjudanden
- Kampanj
- Nyheter
- Outlet
- Alla produkter
- Varumärken
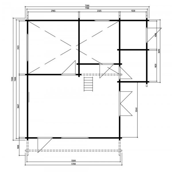
Fritidshus Astrid - 52,5 m²
Produkten har utgått
Dela upp betalningen på 3 månader (räntefritt)
- 30 dagar returrätt
- Personlig support 7 dagar i veckan
- Trygg leverans – mindre paket till ombud, större möbler hemleverans
- Skickas från vårt eget lager i Sverige
- Säkra betalningar –30-dagars faktura, kort, swish eller direktbetalning
Börjar du få lite ont om utrymme och praktiskt och smidigt vill utöka? Kanske en gäststuga på tomten, ett uthus eller ett eget hus till tonårsbarnen? Ett fritidshus passar även bra som exempelvis kolonistuga eller sommarstuga.
Monteringsfärdig
Detta hus levereras komplett som en byggsats och monteras enkelt ihop efter medföljande ritning. Huset har en knuttimrad design och uppbyggnad vilket gör det både lättmonterat och stabilt. Allt material levereras obehandlat, rekommenderat är att tidigt behandla med grundolja, utegrundfärg eller täckfärg. Inkluderat är allt som behövs för montering, d.v.s. spikar, skruvar etc.
Tak/golv och grund
Tak och golv består av 18 mm råspont, detta ingår i byggsatsen. Även behandlade bärlinor till grunden ingår. Själva grunden får man göra själv, material till detta medföljer ej. Hur grunden görs beror på markförhållanden, utseende på huset och vad man själv föredrar. Antingen kan en platta gjutas eller kan en plintgrund på exempelvis trädgårdsplattor eller lättklinkerblock användas.
Det rekommenderas att taket bekläs med skydd för lång hållbarhet, exempelvis finns shingel i olika färg som tillval.
Levereras med 5 års garanti.
- Material: Nordisk gran
- Yttermått väggar: 730x720 cm
- Vägghöjd: 2,4 m
- Nockhöjd: 3,8 m
- Väggtjocklek: 70 mm
- Golvyta: 43 m² + loft 12 m²
- Takarea: Ca 67 m²
- Golv: 28 mm
- Dörrar: 2 x glasade ytterdörrar, en dubbeldörr och en enkeldörr ( 1,54 x 1,98 m / 0,9 x 1,98 m). 1 x förrådsdörr helt i trä (0,84 x 1,52 m). 3 x innerdörrar (2 x dörrar 0,8 x 1,98 m) samt 1 x dörr (0,7 x 1,98 m). Ytterdörrarna har cylinderlås.
- Fönster: 1 x fönster (1,54 x 1,14 m), 1 x fönster (1,54 x 0,88 m), 1 x fönster (0,8 x 0,88 m), 1 x fönster (0,51 x 0,51 m). Samtliga fönster är öppningsbara, 2-glas (2x3 mm)
Läs mer
Så hanterar vi kundrecensioner:
Vi säkerställer att våra produktrecensioner kommer från verkliga kunder genom följande process:
Efter varje levererad beställning skickar vi en unik länk till kunden via e-post. Genom denna länk kan kunden endast recensera de specifika produkter som ingick i den aktuella ordern – inga andra produkter kan recenseras via samma länk. På recensionssidan har kunden även möjlighet att bedöma oss som återförsäljare. Denna metod garanterar att alla recensioner kommer från kunder som faktiskt har köpt och mottagit produkterna de recenserar.
Publicering av recensionerVi publicerar alla recensioner som följer våra riktlinjer, oavsett betyg. Det innebär att både positiva och negativa omdömen visas, så länge de inte innehåller olämpligt språk, personangrepp eller saknar relevans.
Recensioner som enbart rör leveransproblem (t.ex. förseningar) publiceras inte på produktsidan, eftersom de inte betygsätter själva produkten. Däremot kan sådana synpunkter lämnas i betygsättningen av oss som återförsäljare.
Beräkning av genomsnittsbetygDet genomsnittliga betyget för en produkt visas som ett medelvärde av samtliga publicerade recensioner för just den produkten.
Läs merBra, men tog aningens längre tid än förväntat.
Den kom snappt, ett elände att sätta i hop grillen,men skit den som ger sig.
Lätt att beställa men leveranstiden blev längre än vad som sades.
Ja det är bra och den jättebra
Leveranstiden skulle vara 2-6 dagar men blev 12 dagar. Kunde hämta ugnen själv på terminal och därmed blev det 7 dagar. Bra om det framgår vilka dagar som gäller, kalenderdagar/arbetsdagar. Alltid bra med tydlighet, för planeringens skull. Bra emballage och mycket hjälpsam personal på terminalen i Uddevalla. Eloge till dem också! Har mailar frågor och fått svar men det finns ingen att ringa. I stort mycket nöjd och vågar handla från er igen.
Lätt att beställa varorna kom i tid Kundtjänst är nog väldigt underbemanade tar väldigt lång tid för att svara
Allt var bra förutom leveranstiden som blev längre än vad som lovats.
Snabb leverans och allt har fungerat precis som utlovat. På Hemfint handlar jag gärna igen.
Mycket nöjd och kan verkligen rekommendera er .
Att beställa var inga bekymmer, leveransen var okej.
Nej 4 veckor för sent
0 av 1 tyckte att denna recension var till hjälp.
Hjälpte den här recensionen dig?
Hjälpte den här recensionen dig?
0 av 1 tyckte att denna recension var till hjälp.
Hjälpte den här recensionen dig?
Hjälpte den här recensionen dig?
0 av 1 tyckte att denna recension var till hjälp.
Hjälpte den här recensionen dig?
Hjälpte den här recensionen dig?
1 av 3 tyckte att denna recension var till hjälp.
Hjälpte den här recensionen dig?
0 av 4 tyckte att denna recension var till hjälp.
Hjälpte den här recensionen dig?
Hjälpte den här recensionen dig?
- Mycket för pengarna & stort sortiment
- Endast kvalitetsprodukter!
- Erbjuder faktura utan extra kostnad
- Snabb leverans!
- Trevlig kundtjänst!
- Vår kunniga och tillmötesgående kundservice finns här för att hjälpa dig och svara på alla frågor som rör ditt köp!
Har du frågor eller funderingar inför ditt köp?
Tveka inte att höra av dig till vår säljavdelningen så hjälper vi dig gärna!
Genom att bli medlem godkänner du Hemfint.se Integritetspolicy.














