- Badrumsinredning
- Dörrar & portar
- Julklappstips
- Utemiljö & Trädgård
- Verktyg & redskap
- Sport & fritid
- Fönster
- Träningsutrustning
- Växthus
- Hem & inredning
- Lagerrensning
- Stugor & Friggebodar
- Hus & bygg
- Bil & garage
- Kampanj
- Nyheter
- Outlet
- Alla produkter
- Varumärken
Attefallshus Karl A - 19 m²
Produkten har utgått
Julkampanj
- 30 dagar returrätt
- Personlig support 7 dagar i veckan
- Trygg leverans – mindre paket till ombud, större möbler hemleverans
- Skickas från vårt eget lager i Sverige
- Säkra betalningar –30-dagars faktura, kort, swish eller direktbetalning
Börjar du få lite ont om utrymme och praktiskt och smidigt vill utöka? Kanske en gäststuga på tomten, ett uthus, förråd eller ett eget hus till tonårsbarnen? Ett attefallshus kan även fungera bra som exempelvis kolonistuga eller sommarstuga. Detta är möjligt tack vare bestämmelser om attefallshus som tillåter att fritt antal attefallshus på max 25 kvm får uppföras som komplement till ett en - eller tvåbostadshus. Tänk bara på att nockhöjden inte får överstiga 4 meter. Till skillnad från friggebodar får attefallshus inte bara användas som komplementbyggnad utan får även inredas och användas som självständiga bostäder. Kolla gärna med Boverket gällande ytterligare bestämmelser angående attefallshus.
Monteringsfärdig
Detta attefallshus levereras komplett som en byggsats och monteras enkelt ihop efter medföljande ritning. Stugan har en knuttimrad design och uppbyggnad vilket gör det både lättmonterat och stabilt. Allt material levereras obehandlat, rekommenderat är att tidigt behandla med grundolja, utegrundfärg eller täckfärg. Inkluderat är allt som behövs för montering, d.v.s. spikar, skruvar etc.
Tak/golv och grund
Tak och golv består av 18 mm råspont, detta ingår i byggsatsen. Även behandlade bärlinor till grunden ingår. Själva grunden får man göra själv, material till detta medföljer ej. Hur grunden görs beror på markförhållanden, utseende på huset och vad man själv föredrar. Antingen kan en platta gjutas eller kan en plintgrund på exempelvis trädgårdsplattor eller lättklinkerblock användas.
Det rekommenderas att taket bekläs med skydd för lång hållbarhet, slitstark och hållbar självhäftande takpapp finns som tillval.
Levereras med 5 års garanti.
- Material: Nordisk gran
- Yttermått väggar: 450x420 cm
- Vägghöjd: 2,1 m
- Nockhöjd: 2,35 m
- Väggtjocklek: 44 mm
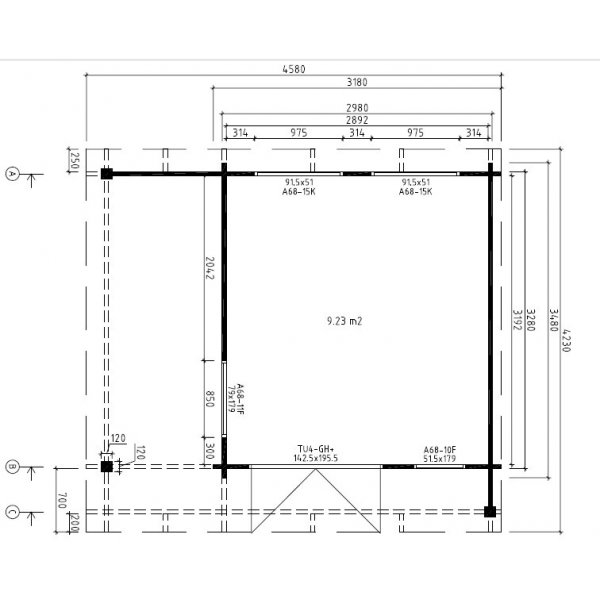
- Golvyta: 9,23 m²
- Takarea: Ca 20 m²
- Golv: 18 mm
- Dörr: Dubbeldörr i glas (1,5 x 1,88 m), inklusive cylinderlås och handtag
- Fönster: 2 x fasta panorama fönster (0,79 x 1,79 / 0,51 x 1,79 m), 2 x öppningsbara fönster (0,9 x 0,5 m), 2-glas (2x3 mm)
Användbara länkar:
Läs mer
Så hanterar vi kundrecensioner:
Vi säkerställer att våra produktrecensioner kommer från verkliga kunder genom följande process:
Efter varje levererad beställning skickar vi en unik länk till kunden via e-post. Genom denna länk kan kunden endast recensera de specifika produkter som ingick i den aktuella ordern – inga andra produkter kan recenseras via samma länk. På recensionssidan har kunden även möjlighet att bedöma oss som återförsäljare. Denna metod garanterar att alla recensioner kommer från kunder som faktiskt har köpt och mottagit produkterna de recenserar.
Publicering av recensionerVi publicerar alla recensioner som följer våra riktlinjer, oavsett betyg. Det innebär att både positiva och negativa omdömen visas, så länge de inte innehåller olämpligt språk, personangrepp eller saknar relevans.
Recensioner som enbart rör leveransproblem (t.ex. förseningar) publiceras inte på produktsidan, eftersom de inte betygsätter själva produkten. Däremot kan sådana synpunkter lämnas i betygsättningen av oss som återförsäljare.
Beräkning av genomsnittsbetygDet genomsnittliga betyget för en produkt visas som ett medelvärde av samtliga publicerade recensioner för just den produkten.
Läs merInga problem, gick smidigt
Inga som helst problem med beställningen och snabb leverans var det också👍👏 Det fanns så mycket fina cycklar att välja emellan men jag fattade tycke om just denna cyckel väldigt fort.
Det gick bra helt nöjd
Bra och lätt att beställa. Bra information om leverans. Kundtjänst bra kommunikation via mail.Gott bemötande.
Att beställa var inga bekymmer, leveransen var okej.
Bra, men tog aningens längre tid än förväntat.
Dom kommer som utlovat
The customer service is good and polite even before the item arrived they able to assist me with the order number by providing the tracking as well shipment is very neat and te driver contacted 1 hour before coming and delivery was smooth without any damages and all the boxed came right
Enkelt att beställa, varan kom väl inpackad och levererades i tid.
Smidig hemsida med bra priser. Varan kom snabbt efter genomförd beställning.
Varorna kom i tid! En liten fraktskada bara.
Hjälpte den här recensionen dig?
Hjälpte den här recensionen dig?
1 av 2 tyckte att denna recension var till hjälp.
Hjälpte den här recensionen dig?
0 av 1 tyckte att denna recension var till hjälp.
Hjälpte den här recensionen dig?
Hjälpte den här recensionen dig?
Hjälpte den här recensionen dig?
Hjälpte den här recensionen dig?
Hjälpte den här recensionen dig?
Hjälpte den här recensionen dig?
- Mycket för pengarna & stort sortiment
- Endast kvalitetsprodukter!
- Erbjuder faktura utan extra kostnad
- Snabb leverans!
- Trevlig kundtjänst!
- Vår kunniga och tillmötesgående kundservice finns här för att hjälpa dig och svara på alla frågor som rör ditt köp!
Har du frågor eller funderingar inför ditt köp?
Tveka inte att höra av dig till vår säljavdelningen så hjälper vi dig gärna!
Genom att bli medlem godkänner du Hemfint.se Integritetspolicy.






