- Badrumsinredning
- Dörrar & portar
- Julklappstips
- Utemiljö & Trädgård
- Verktyg & redskap
- Sport & fritid
- Fönster
- Träningsutrustning
- Växthus
- Hem & inredning
- Lagerrensning
- Stugor & Friggebodar
- Hus & bygg
- Bil & garage
- Kampanj
- Nyheter
- Outlet
- Alla produkter
- Varumärken
Förråd Arne C - 10 m²
Produkten har utgått
Julkampanj
- 30 dagar returrätt
- Personlig support 7 dagar i veckan
- Trygg leverans – mindre paket till ombud, större möbler hemleverans
- Skickas från vårt eget lager i Sverige
- Säkra betalningar –30-dagars faktura, kort, swish eller direktbetalning
Om du behöver lite extra förvaringsutrymme i trädgården kan detta förråd vara något för dig. Förrådet går under reglerna för friggebodar där fritt antal får uppföras med en total area av 15 kvm i anslutning till ett en - eller tvåbostadshus. Tänk bara på att totala höjden inte får överstiga 3 meter. Kolla gärna med Boverket gällande ytterligare bestämmelser angående friggebodar.
Monteringsfärdig
Detta förråd levereras komplett som en byggsats och monteras enkelt ihop efter medföljande ritning. Boden har en knuttimrad design och uppbyggnad vilket gör den både lättmonterad och stabil. Allt material levereras obehandlat, rekommenderat är att tidigt behandla med grundolja, utegrundfärg eller täckfärg. Inkluderat är allt som behövs för montering, d.v.s. spikar, skruvar etc.
Tak/golv och grund
Tak och golv består av 18 mm råspont, detta ingår i byggsatsen. Även behandlade bärlinor till grunden ingår. Själva grunden får man göra själv, material till detta medföljer ej. Hur grunden görs beror på markförhållanden, utseende på boden och vad man själv föredrar. Antingen kan en platta gjutas eller kan en plintgrund på exempelvis trädgårdsplattor eller lättklinkerblock användas.
Det rekommenderas att taket bekläs med skydd för lång hållbarhet, slitstark och hållbar självhäftande takpapp finns som tillval.
Levereras med 5 års garanti.
- Material: Nordisk gran
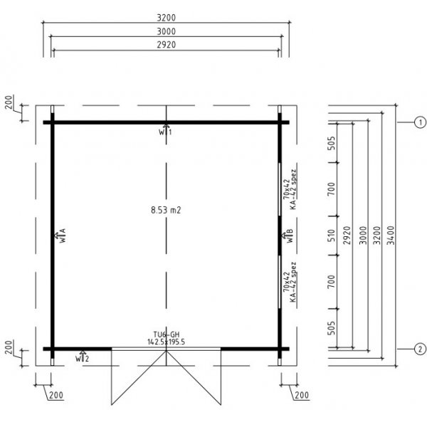
- Yttermått väggar: 320x320 cm
- Vägghöjd: 2,05 m
- Nockhöjd: 2,45 m
- Väggtjocklek: 44 mm
- Golvyta: 8,5 m²
- Takarea: Ca 10 m²
- Golv: 18 mm
- Dörr: Dubbeldörr i trä (1,43 x 1,99 m), inklusive cylinderlås och handtag
- Fönster: 2 x öppningsbara fönster (0,7 x 0,42 m), dubbelglasat
Användbara länkar:
Läs mer
Så hanterar vi kundrecensioner:
Vi säkerställer att våra produktrecensioner kommer från verkliga kunder genom följande process:
Efter varje levererad beställning skickar vi en unik länk till kunden via e-post. Genom denna länk kan kunden endast recensera de specifika produkter som ingick i den aktuella ordern – inga andra produkter kan recenseras via samma länk. På recensionssidan har kunden även möjlighet att bedöma oss som återförsäljare. Denna metod garanterar att alla recensioner kommer från kunder som faktiskt har köpt och mottagit produkterna de recenserar.
Publicering av recensionerVi publicerar alla recensioner som följer våra riktlinjer, oavsett betyg. Det innebär att både positiva och negativa omdömen visas, så länge de inte innehåller olämpligt språk, personangrepp eller saknar relevans.
Recensioner som enbart rör leveransproblem (t.ex. förseningar) publiceras inte på produktsidan, eftersom de inte betygsätter själva produkten. Däremot kan sådana synpunkter lämnas i betygsättningen av oss som återförsäljare.
Beräkning av genomsnittsbetygDet genomsnittliga betyget för en produkt visas som ett medelvärde av samtliga publicerade recensioner för just den produkten.
Läs merJätte bra cykel är nöjd
Beställde enkelt på hemsidan.
Ja det är bra och den jättebra
Gick jättesmidigt och beställa varan! Ett handtag va sönder men kundtjänst hjälpte oss extremt bra och gav oss en kompensering för skadan!
Fick dörren på utsatt tid, dock efter 10 veckor. Men det var det värt.
Lätt att beställa. Kom fort.
Smidigt att beställa. Levererades i tid.
Bra och lätt att beställa. Bra information om leverans. Kundtjänst bra kommunikation via mail.Gott bemötande.
Levererades utan problem inom ett par veckor.
Det tag lite tid dom från kundtjänst svara mail.annars får det vara nöjd.
Lätt beställa. Fick varorna i tid. Kundtjänst svarade snabbt.
1 av 3 tyckte att denna recension var till hjälp.
Hjälpte den här recensionen dig?
Hjälpte den här recensionen dig?
1 av 1 tyckte att denna recension var till hjälp.
Hjälpte den här recensionen dig?
1 av 1 tyckte att denna recension var till hjälp.
Hjälpte den här recensionen dig?
Hjälpte den här recensionen dig?
0 av 1 tyckte att denna recension var till hjälp.
Hjälpte den här recensionen dig?
Hjälpte den här recensionen dig?
0 av 1 tyckte att denna recension var till hjälp.
Hjälpte den här recensionen dig?
Hjälpte den här recensionen dig?
- Mycket för pengarna & stort sortiment
- Endast kvalitetsprodukter!
- Erbjuder faktura utan extra kostnad
- Snabb leverans!
- Trevlig kundtjänst!
- Vår kunniga och tillmötesgående kundservice finns här för att hjälpa dig och svara på alla frågor som rör ditt köp!
Har du frågor eller funderingar inför ditt köp?
Tveka inte att höra av dig till vår säljavdelningen så hjälper vi dig gärna!
Genom att bli medlem godkänner du Hemfint.se Integritetspolicy.






