- Badrumsinredning
- Dörrar & portar
- Utemiljö & Trädgård
- Verktyg & redskap
- Fönster
- Sport & fritid
- Växthus
- Lagerrensning
- Stugor & Friggebodar
- Träningsutrustning
- Hem & inredning
- Bil & garage
- Hus & bygg
- Black Friday
- Nyheter
- Outlet
- Alla produkter
- Varumärken
Förråd Kajsa I - 14 m²
Produkten har utgått
Dela upp betalningen på 18 månader
- 30 dagar returrätt
- Personlig support 7 dagar i veckan
- Trygg leverans – mindre paket till ombud, större möbler hemleverans
- Skickas från vårt eget lager i Sverige
- Säkra betalningar –30-dagars faktura, kort, swish eller direktbetalning
Om du behöver lite extra förvaringsutrymme i trädgården kan detta förråd vara något för dig. Förrådet går under reglerna för friggebodar där fritt antal får uppföras med en total area av 15 kvm i anslutning till ett en - eller tvåbostadshus. Tänk bara på att totala höjden inte får överstiga 3 meter. Kolla gärna med Boverket gällande ytterligare bestämmelser angående friggebodar.
Monteringsfärdig
Detta förråd levereras komplett som en byggsats och monteras enkelt ihop efter medföljande ritning. Boden har en knuttimrad design och uppbyggnad vilket gör den både lättmonterad och stabil. Allt material levereras obehandlat, rekommenderat är att tidigt behandla med grundolja, utegrundfärg eller täckfärg. Inkluderat är allt som behövs för montering, d.v.s. spikar, skruvar etc.
Tak/golv och grund
Tak och golv består av 18 mm råspont, detta ingår i byggsatsen. Även behandlade bärlinor till grunden ingår. Själva grunden får man göra själv, material till detta medföljer ej. Hur grunden görs beror på markförhållanden, utseende på boden och vad man själv föredrar. Antingen kan en platta gjutas eller kan en plintgrund på exempelvis trädgårdsplattor eller lättklinkerblock användas.
Det rekommenderas att taket bekläs med skydd för lång hållbarhet, slitstark och hållbar självhäftande takpapp finns som tillval.
Levereras med 5 års garanti.
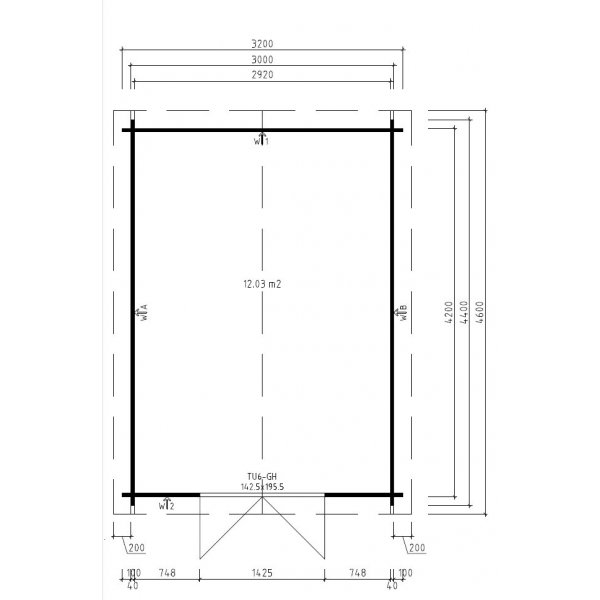
- Material: Nordisk gran
- Yttermått väggar: 440x320 cm
- Vägghöjd: 2,05 m
- Nockhöjd: 2,45 m
- Väggtjocklek: 44 mm
- Golvyta: 12 m²
- Takarea: Ca 13,5 m²
- Golv: 18 mm
- Dörr: Dubbeldörr i trä (1,43 x 1,99 m), inklusive cylinderlås och handtag
Användbara länkar:
Läs mer
Så hanterar vi kundrecensioner:
Vi säkerställer att våra produktrecensioner kommer från verkliga kunder genom följande process:
Efter varje levererad beställning skickar vi en unik länk till kunden via e-post. Genom denna länk kan kunden endast recensera de specifika produkter som ingick i den aktuella ordern – inga andra produkter kan recenseras via samma länk. På recensionssidan har kunden även möjlighet att bedöma oss som återförsäljare. Denna metod garanterar att alla recensioner kommer från kunder som faktiskt har köpt och mottagit produkterna de recenserar.
Publicering av recensionerVi publicerar alla recensioner som följer våra riktlinjer, oavsett betyg. Det innebär att både positiva och negativa omdömen visas, så länge de inte innehåller olämpligt språk, personangrepp eller saknar relevans.
Recensioner som enbart rör leveransproblem (t.ex. förseningar) publiceras inte på produktsidan, eftersom de inte betygsätter själva produkten. Däremot kan sådana synpunkter lämnas i betygsättningen av oss som återförsäljare.
Beräkning av genomsnittsbetygDet genomsnittliga betyget för en produkt visas som ett medelvärde av samtliga publicerade recensioner för just den produkten.
Läs merGick utmärkt. Lätt att beställa och snabb leverans. Från att vid ett tidigare köp med 7 månaders väntetid och STORT missnöje så är jag mycket positivt överraskad den här gången mycket bra produkt och blixtsnabb leverans till ett mycket bra pris
Varorna var bra en kom inte i tid. Omöjligt att få kontakt med support. Som sagt - Bra vara till bra pris men dålig supportfunktion.
Smidigt att beställa. Levererades i tid.
Inga problem. men varför inget telefonnummer så att man kan ringa och diskutera !
Enkelt att beställa, varorna kom i tid o leverans var smidig. Vänlig o hjälpsam man som kom med bordet på utsatt tid.
Vänligt bemötande vid förfrågningar. Stort tack till Kayleen
Tydligen har ni delat upp försändelsen i flera omgångar.. Obra för alla
Att beställa var inga bekymmer, leveransen var okej.
Jag är nöjd faktiskt.
Lätt beställa. Fick varorna i tid. Kundtjänst svarade snabbt.
Levererades utan problem inom ett par veckor.
1 av 2 tyckte att denna recension var till hjälp.
Hjälpte den här recensionen dig?
Hjälpte den här recensionen dig?
0 av 1 tyckte att denna recension var till hjälp.
Hjälpte den här recensionen dig?
1 av 2 tyckte att denna recension var till hjälp.
Hjälpte den här recensionen dig?
0 av 1 tyckte att denna recension var till hjälp.
Hjälpte den här recensionen dig?
0 av 1 tyckte att denna recension var till hjälp.
Hjälpte den här recensionen dig?
Hjälpte den här recensionen dig?
Hjälpte den här recensionen dig?
Hjälpte den här recensionen dig?
- Mycket för pengarna & stort sortiment
- Endast kvalitetsprodukter!
- Erbjuder faktura utan extra kostnad
- Snabb leverans!
- Trevlig kundtjänst!
- Vår kunniga och tillmötesgående kundservice finns här för att hjälpa dig och svara på alla frågor som rör ditt köp!
Har du frågor eller funderingar inför ditt köp?
Tveka inte att höra av dig till vår säljavdelningen så hjälper vi dig gärna!
Genom att bli medlem godkänner du Hemfint.se Integritetspolicy.






