- Badrumsinredning
- Dörrar & portar
- Julklappstips
- Utemiljö & Trädgård
- Verktyg & redskap
- Sport & fritid
- Fönster
- Träningsutrustning
- Växthus
- Hem & inredning
- Lagerrensning
- Stugor & Friggebodar
- Hus & bygg
- Bil & garage
- Kampanj
- Nyheter
- Outlet
- Alla produkter
- Varumärken
Dubbelgarage Vilda - 31 m²
Produkten har utgått
Julkampanj
- 30 dagar returrätt
- Personlig support 7 dagar i veckan
- Trygg leverans – mindre paket till ombud, större möbler hemleverans
- Skickas från vårt eget lager i Sverige
- Säkra betalningar –30-dagars faktura, kort, swish eller direktbetalning
Behöver du ett skydd till bilen, motorcykeln, mopeden eller kanske en kombinerad verkstad med förråd? Då kan det garage vara något för dig. Finns att välja utan garageport, med sidoöppnade garageportar eller takskjutportar.
Monteringsfärdig
Detta dubbelgarage levereras komplett som en byggsats och monteras enkelt ihop efter medföljande ritning. Garaget har en knuttimrad design och uppbyggnad vilket gör det både lättmonterat och stabilt. Allt material levereras obehandlat, rekommenderat är att tidigt behandla med grundolja, utegrundfärg eller täckfärg. Inkluderat är allt som behövs för montering, d.v.s. spikar, skruvar etc.
Tak och grund
Tak består av 18 mm råspont, detta ingår i byggsatsen. Även behandlade bärlinor till grunden ingår. Själva grunden får man göra själv, material till detta medföljer ej. Till ett garage kan det vara lämpligt med en gjuten stabil platta.
Det rekommenderas att taket bekläs med skydd för lång hållbarhet, exempelvis finns shingel i olika färg som tillval.
Levereras med 5 års garanti.
- Material: Nordisk gran
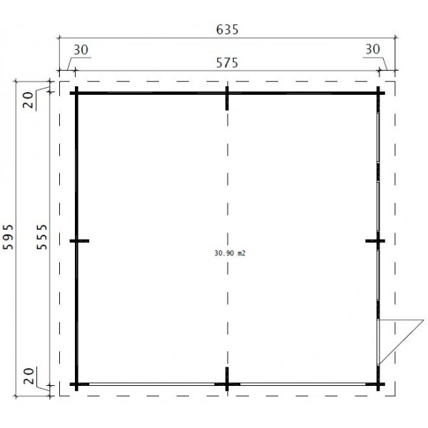
- Yttermått väggar: 570x550 cm
- Vägghöjd: 2,3 m
- Nockhöjd: 2,85 m
- Väggtjocklek: 44 mm
- Golvyta: 31 m²
- Takarea: Ca 40 m²
- Golv: Inget golv inkluderat
- Dörr: 1 x dörr (0,84 x 1,95 m) inklusive cylinderlås och handtag, 2 x garagedörrar (2,37 x 1,96 m). Standard är utan garageportar, sidodörrar eller takskjutport finns att välja till
- Fönster: 3 x öppningsbara fönster (0,91 x 0,51 m), 2-glas (2x3 mm)
Användbara länkar:
Läs mer
Läs mer
Så hanterar vi kundrecensioner:
Vi säkerställer att våra produktrecensioner kommer från verkliga kunder genom följande process:
Efter varje levererad beställning skickar vi en unik länk till kunden via e-post. Genom denna länk kan kunden endast recensera de specifika produkter som ingick i den aktuella ordern – inga andra produkter kan recenseras via samma länk. På recensionssidan har kunden även möjlighet att bedöma oss som återförsäljare. Denna metod garanterar att alla recensioner kommer från kunder som faktiskt har köpt och mottagit produkterna de recenserar.
Publicering av recensionerVi publicerar alla recensioner som följer våra riktlinjer, oavsett betyg. Det innebär att både positiva och negativa omdömen visas, så länge de inte innehåller olämpligt språk, personangrepp eller saknar relevans.
Recensioner som enbart rör leveransproblem (t.ex. förseningar) publiceras inte på produktsidan, eftersom de inte betygsätter själva produkten. Däremot kan sådana synpunkter lämnas i betygsättningen av oss som återförsäljare.
Beräkning av genomsnittsbetygDet genomsnittliga betyget för en produkt visas som ett medelvärde av samtliga publicerade recensioner för just den produkten.
Läs merDet var lite problem med leveransen, allt annat helt okey.
En mycket nöjd grabb älskar sin nya 🚴♀️
Inga problem. men varför inget telefonnummer så att man kan ringa och diskutera !
Allt gick smidigt leveransen gick inom tidsramen. Ej i kontakt med kundtjänst behövdes alldrig.
Lätt att beställa. Fick dock inte leverans som överenskommet. Väntade hela dagen, ingen leverans. Kom nästa dag. Det var dåligt. Trevlig men maktlös kundtjänst. Dock nöjd med varorna.
Allt fungerade bra . Väntar nu på räkningen.
Mycket bra hemsida,varan kom i tid utan anmärkningar. Till stor belåtenhet.
Allt funkade som det var utlovat
Snabb o smidig leverans
Leveranstiden skulle vara 2-6 dagar men blev 12 dagar. Kunde hämta ugnen själv på terminal och därmed blev det 7 dagar. Bra om det framgår vilka dagar som gäller, kalenderdagar/arbetsdagar. Alltid bra med tydlighet, för planeringens skull. Bra emballage och mycket hjälpsam personal på terminalen i Uddevalla. Eloge till dem också! Har mailar frågor och fått svar men det finns ingen att ringa. I stort mycket nöjd och vågar handla från er igen.
Yes. We received the delivery in time.
0 av 1 tyckte att denna recension var till hjälp.
Hjälpte den här recensionen dig?
Hjälpte den här recensionen dig?
0 av 1 tyckte att denna recension var till hjälp.
Hjälpte den här recensionen dig?
Hjälpte den här recensionen dig?
Hjälpte den här recensionen dig?
Hjälpte den här recensionen dig?
0 av 1 tyckte att denna recension var till hjälp.
Hjälpte den här recensionen dig?
Hjälpte den här recensionen dig?
1 av 3 tyckte att denna recension var till hjälp.
Hjälpte den här recensionen dig?
- Mycket för pengarna & stort sortiment
- Endast kvalitetsprodukter!
- Erbjuder faktura utan extra kostnad
- Snabb leverans!
- Trevlig kundtjänst!
- Vår kunniga och tillmötesgående kundservice finns här för att hjälpa dig och svara på alla frågor som rör ditt köp!
Har du frågor eller funderingar inför ditt köp?
Tveka inte att höra av dig till vår säljavdelningen så hjälper vi dig gärna!
Genom att bli medlem godkänner du Hemfint.se Integritetspolicy.






