- Badrumsinredning
- Julklappstips
- Dörrar & portar
- Sport & fritid
- Utemiljö & Trädgård
- Verktyg & redskap
- Fönster
- Träningsutrustning
- Växthus
- Hem & inredning
- Lagerrensning
- Stugor & Friggebodar
- Hus & bygg
- Bil & garage
- Kampanj
- Nyheter
- Outlet
- Alla produkter
- Varumärken
Attefallshus Karl F - 25 m²
Produkten har utgått
Dela upp betalningen på 3 månader (räntefritt)
- 30 dagar returrätt
- Personlig support 7 dagar i veckan
- Trygg leverans – mindre paket till ombud, större möbler hemleverans
- Skickas från vårt eget lager i Sverige
- Säkra betalningar –30-dagars faktura, kort, swish eller direktbetalning
Börjar du få lite ont om utrymme och praktiskt och smidigt vill utöka? Kanske en gäststuga på tomten, ett uthus, förråd eller ett eget hus till tonårsbarnen? Ett attefallshus kan även fungera bra som exempelvis kolonistuga eller sommarstuga. Detta är möjligt tack vare bestämmelser om attefallshus som tillåter att fritt antal attefallshus på max 25 kvm får uppföras som komplement till ett en - eller tvåbostadshus. Tänk bara på att nockhöjden inte får överstiga 4 meter. Till skillnad från friggebodar får attefallshus inte bara användas som komplementbyggnad utan får även inredas och användas som självständiga bostäder. Kolla gärna med Boverket gällande ytterligare bestämmelser angående attefallshus.
Monteringsfärdig
Detta attefallshus levereras komplett som en byggsats och monteras enkelt ihop efter medföljande ritning. Stugan har en knuttimrad design och uppbyggnad vilket gör det både lättmonterat och stabilt. Allt material levereras obehandlat, rekommenderat är att tidigt behandla med grundolja, utegrundfärg eller täckfärg. Inkluderat är allt som behövs för montering, d.v.s. spikar, skruvar etc.
Tak/golv och grund
Tak och golv består av 18 mm råspont, detta ingår i byggsatsen. Även behandlade bärlinor till grunden ingår. Själva grunden får man göra själv, material till detta medföljer ej. Hur grunden görs beror på markförhållanden, utseende på huset och vad man själv föredrar. Antingen kan en platta gjutas eller kan en plintgrund på exempelvis trädgårdsplattor eller lättklinkerblock användas.
Det rekommenderas att taket bekläs med skydd för lång hållbarhet, slitstark och hållbar självhäftande takpapp finns som tillval.
Levereras med 5 års garanti.
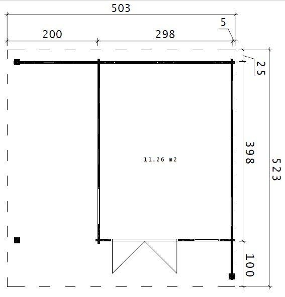
- Material: Nordisk gran
- Yttermått väggar: 500x500 cm
- Vägghöjd: 2,1 m
- Nockhöjd: 2,35 m
- Väggtjocklek: 44 mm
- Golvyta: 11,5 m²
- Takarea: Ca 26 m²
- Golv: 18 mm
- Dörr: 1,5 x 1,88 m, glasad dubbeldörr, inklusive cylinderlås och handtag
- Fönster: 2 x fasta fönster (0,9 x 1,85 m), 3 x öppningsbara fönster (0,7 x 0,45 m), 2-glas (2x3 mm)
Användbara länkar:
Läs mer
Så hanterar vi kundrecensioner:
Vi säkerställer att våra produktrecensioner kommer från verkliga kunder genom följande process:
Efter varje levererad beställning skickar vi en unik länk till kunden via e-post. Genom denna länk kan kunden endast recensera de specifika produkter som ingick i den aktuella ordern – inga andra produkter kan recenseras via samma länk. På recensionssidan har kunden även möjlighet att bedöma oss som återförsäljare. Denna metod garanterar att alla recensioner kommer från kunder som faktiskt har köpt och mottagit produkterna de recenserar.
Publicering av recensionerVi publicerar alla recensioner som följer våra riktlinjer, oavsett betyg. Det innebär att både positiva och negativa omdömen visas, så länge de inte innehåller olämpligt språk, personangrepp eller saknar relevans.
Recensioner som enbart rör leveransproblem (t.ex. förseningar) publiceras inte på produktsidan, eftersom de inte betygsätter själva produkten. Däremot kan sådana synpunkter lämnas i betygsättningen av oss som återförsäljare.
Beräkning av genomsnittsbetygDet genomsnittliga betyget för en produkt visas som ett medelvärde av samtliga publicerade recensioner för just den produkten.
Läs merAllt funkade klockrent!
Lätt att beställa. Kom fort.
Jag saknar bra svar från kundtjänst angående hur vi kan ersätta två takfönster till vårt växthus. Dessa gick sönder under montering pga dåliga instruktioner för montage.
Det gick bra att beställa, varorna fanns, men leveranstiden var långt ifrån utlovat.
Inga problem, gick smidigt
Leveranstiden skulle vara 2-6 dagar men blev 12 dagar. Kunde hämta ugnen själv på terminal och därmed blev det 7 dagar. Bra om det framgår vilka dagar som gäller, kalenderdagar/arbetsdagar. Alltid bra med tydlighet, för planeringens skull. Bra emballage och mycket hjälpsam personal på terminalen i Uddevalla. Eloge till dem också! Har mailar frågor och fått svar men det finns ingen att ringa. I stort mycket nöjd och vågar handla från er igen.
Perfekt det var bra hela vägen tills jag fick varorna.👍
Det var mycket enkelt att beställa varorna trots att det var ovanliga mått på dörren. Den fanns på lagret och kunde skickas omgående med andra varorna. Blev orolig efter att jag beställt varorna när jag läste andra negativa recensioner. Var i kontakt med kundtjänst via mail och fick svar efter ca: 1 timme.Varorna kom som utlovat och kan varmt rekommendera hemfint. Kommer att känna mig trygg med att handla varor därifrån igen. Nöjd kund 😊
Enkelt att beställa o snabb leverans
Professional customer service.
Ja det gick bra jag har fått min varorna i bra tid ni är bäst👍
0 av 1 tyckte att denna recension var till hjälp.
Hjälpte den här recensionen dig?
1 av 2 tyckte att denna recension var till hjälp.
Hjälpte den här recensionen dig?
0 av 2 tyckte att denna recension var till hjälp.
Hjälpte den här recensionen dig?
0 av 1 tyckte att denna recension var till hjälp.
Hjälpte den här recensionen dig?
Hjälpte den här recensionen dig?
Hjälpte den här recensionen dig?
Hjälpte den här recensionen dig?
0 av 1 tyckte att denna recension var till hjälp.
Hjälpte den här recensionen dig?
0 av 1 tyckte att denna recension var till hjälp.
Hjälpte den här recensionen dig?
- Mycket för pengarna & stort sortiment
- Endast kvalitetsprodukter!
- Erbjuder faktura utan extra kostnad
- Snabb leverans!
- Trevlig kundtjänst!
- Vår kunniga och tillmötesgående kundservice finns här för att hjälpa dig och svara på alla frågor som rör ditt köp!
Har du frågor eller funderingar inför ditt köp?
Tveka inte att höra av dig till vår säljavdelningen så hjälper vi dig gärna!
Genom att bli medlem godkänner du Hemfint.se Integritetspolicy.






