- Badrumsinredning
- Dörrar & portar
- Julklappstips
- Utemiljö & Trädgård
- Verktyg & redskap
- Sport & fritid
- Fönster
- Träningsutrustning
- Växthus
- Lagerrensning
- Hem & inredning
- Stugor & Friggebodar
- Hus & bygg
- Bil & garage
- Kampanj
- Nyheter
- Outlet
- Alla produkter
- Varumärken
Friggebod Gösta E - 14 m²
Produkten har utgått
Julkampanj
- 30 dagar returrätt
- Personlig support 7 dagar i veckan
- Trygg leverans – mindre paket till ombud, större möbler hemleverans
- Skickas från vårt eget lager i Sverige
- Säkra betalningar –30-dagars faktura, kort, swish eller direktbetalning
Börjar du få lite ont om utrymme och praktiskt och smidigt vill utöka? Kanske en gäststuga på tomten, ett uthus, förråd eller ett eget hus till tonårsbarnen? En friggebod kan även fungera bra som exempelvis kolonistuga eller sommarstuga. Detta är möjligt tack vare bestämmelser om friggebodar som tillåter att fritt antal friggebodar på max 15 kvm får uppföras som komplement till ett en - eller tvåbostadshus. Tänk bara på att nockhöjden inte får överstiga 3 meter. Kolla gärna med Boverket gällande ytterligare bestämmelser angående friggebodar.
Monteringsfärdig
Denna friggebod levereras komplett som en byggsats och monteras enkelt ihop efter medföljande ritning. Stugan har en knuttimrad design och uppbyggnad vilket gör den både lättmonterad och stabil. Allt material levereras obehandlat, rekommenderat är att tidigt behandla med grundolja, utegrundfärg eller täckfärg. Inkluderat är allt som behövs för montering, d.v.s. spikar, skruvar etc.
Tak/golv och grund
Tak och golv består av 18 mm råspont, detta ingår i byggsatsen. Även behandlade bärlinor till grunden ingår. Själva grunden får man göra själv, material till detta medföljer ej. Hur grunden görs beror på markförhållanden, utseende på huset och vad man själv föredrar. Antingen kan en platta gjutas eller kan en plintgrund på exempelvis trädgårdsplattor eller lättklinkerblock användas.
Det rekommenderas att taket bekläs med skydd för lång hållbarhet, exempelvis finns shingel i olika färg som tillval.
Levereras med 5 års garanti.
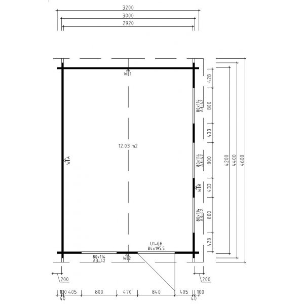
- Material: Nordisk gran
- Yttermått väggar: 440x320 cm
- Vägghöjd: 2,05 m
- Nockhöjd: 2,45 m
- Väggtjocklek: 44 mm
- Golvyta: 12 m²
- Takarea: Ca 17 m²
- Golv: 18 mm
- Dörr: 0,85 x 1,99 m, delvis glasad enkeldörr, inklusive cylinderlås och handtag
- Fönster: 4 x öppningsbara fönster (0,81 x 1,19 m), dubbelglasat
Användbara länkar:
Läs mer
Så hanterar vi kundrecensioner:
Vi säkerställer att våra produktrecensioner kommer från verkliga kunder genom följande process:
Efter varje levererad beställning skickar vi en unik länk till kunden via e-post. Genom denna länk kan kunden endast recensera de specifika produkter som ingick i den aktuella ordern – inga andra produkter kan recenseras via samma länk. På recensionssidan har kunden även möjlighet att bedöma oss som återförsäljare. Denna metod garanterar att alla recensioner kommer från kunder som faktiskt har köpt och mottagit produkterna de recenserar.
Publicering av recensionerVi publicerar alla recensioner som följer våra riktlinjer, oavsett betyg. Det innebär att både positiva och negativa omdömen visas, så länge de inte innehåller olämpligt språk, personangrepp eller saknar relevans.
Recensioner som enbart rör leveransproblem (t.ex. förseningar) publiceras inte på produktsidan, eftersom de inte betygsätter själva produkten. Däremot kan sådana synpunkter lämnas i betygsättningen av oss som återförsäljare.
Beräkning av genomsnittsbetygDet genomsnittliga betyget för en produkt visas som ett medelvärde av samtliga publicerade recensioner för just den produkten.
Läs merLeveranstid ok & spårbart .
Tydligen har ni delat upp försändelsen i flera omgångar.. Obra för alla
Ja det är bra och den jättebra
Yes. We received the delivery in time.
Lätt att beställa och produkten stämde efter våra önskemål. Fick varan som lovat i tid
Varorna kom som det var bokat.
Allt enligt förväntan
Enkel beställning, och leverans i tid.
Precis som jag letar efter det, lite längre på leverans men ändå fick Jag iaf och funkar jättebra.
Det gick lätt att beställa och det var bra att man fick en faktura på köpet, med en vettig tidsfrist att betala den,
Enkelt att beställa, varorna kom i tid o leverans var smidig. Vänlig o hjälpsam man som kom med bordet på utsatt tid.
0 av 1 tyckte att denna recension var till hjälp.
Hjälpte den här recensionen dig?
Hjälpte den här recensionen dig?
Hjälpte den här recensionen dig?
0 av 1 tyckte att denna recension var till hjälp.
Hjälpte den här recensionen dig?
0 av 1 tyckte att denna recension var till hjälp.
Hjälpte den här recensionen dig?
1 av 1 tyckte att denna recension var till hjälp.
Hjälpte den här recensionen dig?
1 av 3 tyckte att denna recension var till hjälp.
Hjälpte den här recensionen dig?
1 av 2 tyckte att denna recension var till hjälp.
Hjälpte den här recensionen dig?
0 av 1 tyckte att denna recension var till hjälp.
Hjälpte den här recensionen dig?
- Mycket för pengarna & stort sortiment
- Endast kvalitetsprodukter!
- Erbjuder faktura utan extra kostnad
- Snabb leverans!
- Trevlig kundtjänst!
- Vår kunniga och tillmötesgående kundservice finns här för att hjälpa dig och svara på alla frågor som rör ditt köp!
Har du frågor eller funderingar inför ditt köp?
Tveka inte att höra av dig till vår säljavdelningen så hjälper vi dig gärna!
Genom att bli medlem godkänner du Hemfint.se Integritetspolicy.






